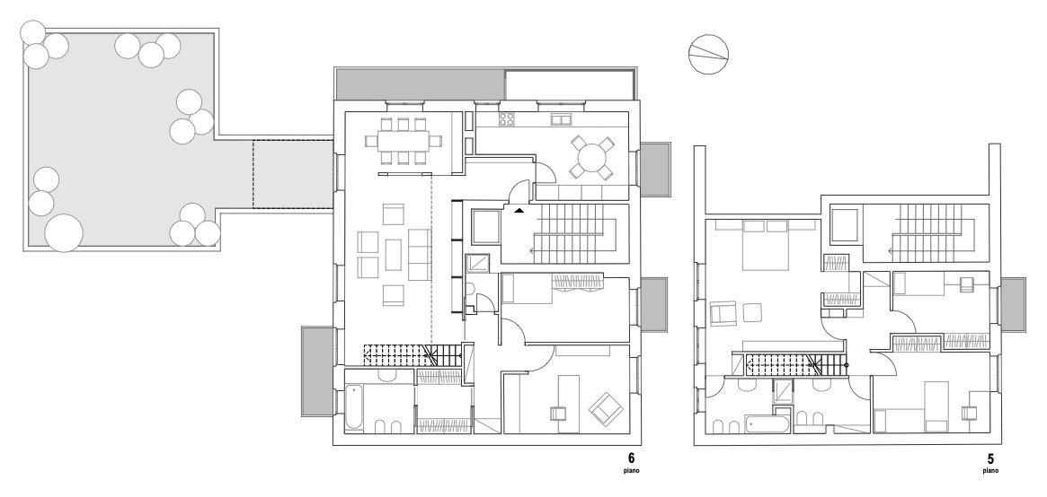
180 mq su due livelli
Il progetto è la fusione di due appartamenti posti su piani differenti, uno di 130 mq e l'altro di 50 mq circa, in una grande casa destinata a una famiglia di quattro persone. L’edificio costruito negli anni Cinquanta è situato nel cuore della Zona Sarpi a Milano.
Al piano inferiore si è concentrata la zona notte: la camera da letto dei bimbi è collegata ad una stanza per i giochi, mentre la camera matrimoniale, ampia e colorata di un caldo turchese, è attrezzata con una libreria e cabina armadio. I bagni sono comunicanti e collegati da una doccia.
Al piano superiore - di metratura più ampia - si concentrano le attività comuni - soggiorno, cucina, studio - e una camera per gli ospiti e i servizi. Adiacente al soggiorno/pranzo un ampio terrazzo apre la vista sulla nuova città di Porta Nuova-Garibaldi. Pavimenti in parquet di rovere industriale, piastrelle in gres in cucina e nei bagni, mentre come rivestimento piastrelle colorate di recupero e lastre di Trani.
Nella zona giorno e nelle zone notte matrimoniale e dei bambini sono stati disegnati mobili su misura, con pannelli colorati, a scorrere che creano ambienti divertenti e mutevoli.








































