90 mq
L'appartamento si trova in un edificio che fa parte di un isolato di ex edilizia popolare anni Trenta in zona Piazzale Aquileia, di grande fascino e unicità.
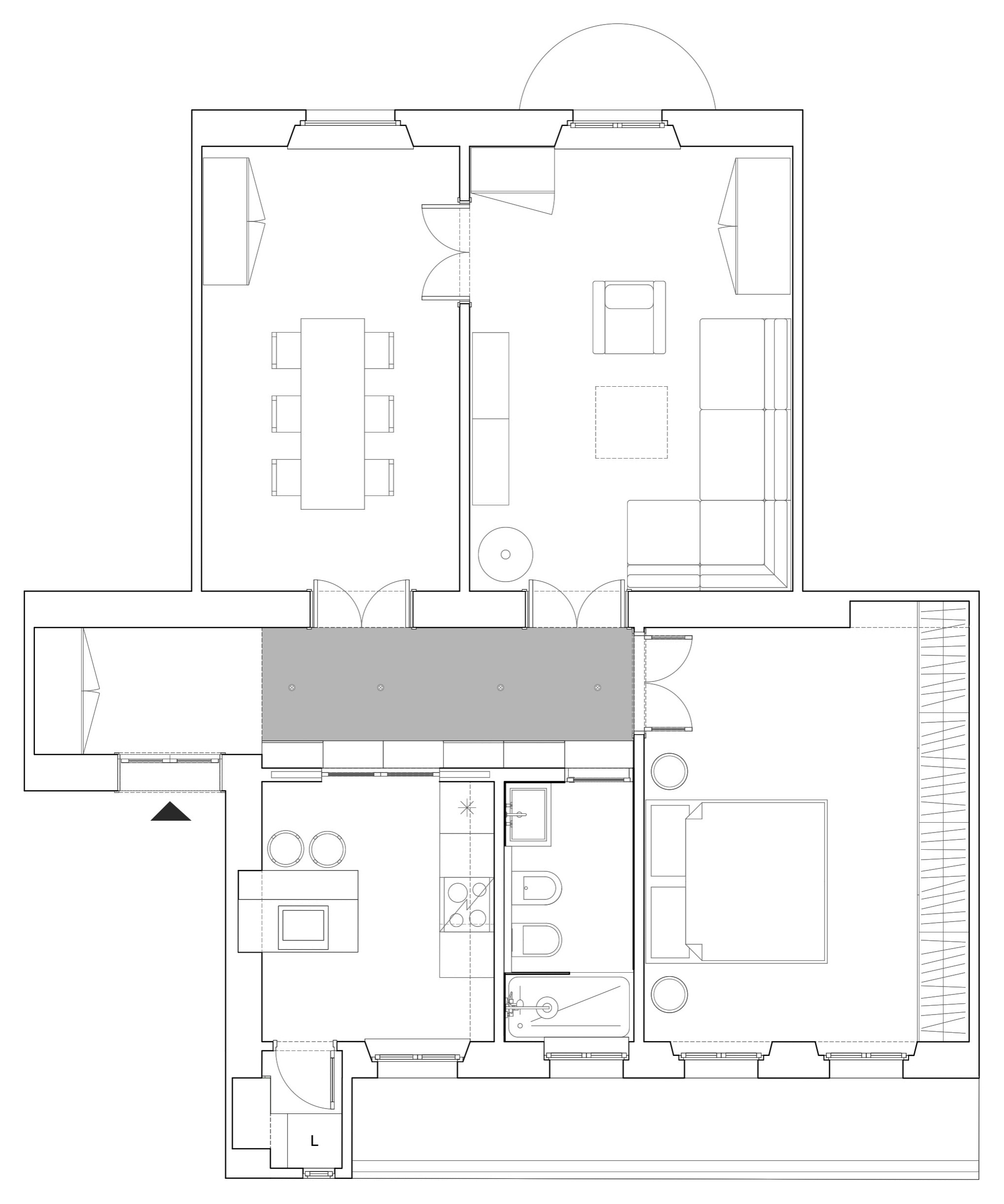
L'intervento ha come fulcro il corridoio e la cucina. Nel primo è stata costruita su misura una libreria che contenesse tutti i libri senza incidere sulle stanze da pranzo e soggiorno.
Per la seconda è stata progettata una disposizione che dilatasse lo spazio, una parte a tutta altezza attrezzata e l'isola che parte dalla nicchia recuperata senza altro mobile o pensile in aggiunta.
La grande apertura della porta a scorrere sul corridoio-libreria rende lo spazio più fluido e luminoso pur mantenendo l'originaria separazione.
Una particolare attenzione è stata rivolta al recupero degli elementi peculiari della casa, in particolare ai pavimenti in graniglia e alle porte esistenti.
I pavimenti nei locali dove era necessario intervenire sugli impianti idraulici ed elettrici sono stati sostituiti con nuove pavimentazioni in graniglia, di diversi colori e trame geometriche.
Alle pareti colori neutri per dare il giusto risalto ai pavimenti e alla mobilia in legno recuperata e sapientemente restaurata in soggiorno e sala da pranzo, in camera da letto un rosso cremisi con garbo tiene insieme il passato del letto e comodini in legno con il moderno del guardaroba e delle applique.
Realizzazione mobili su misura
Arredi Motta
Via Federico Faruffini, 13, 20149 Milano MI










































