70 mq
L’appartamento si trova in un edificio inizi Novecento tra due vie, Via Popoli Uniti e Via Venini, a NoLo, un quartiere di Milano dinamico che nel tempo ha saputo fare sistema e valore dell’eterogeneità degli abitanti e delle attività.
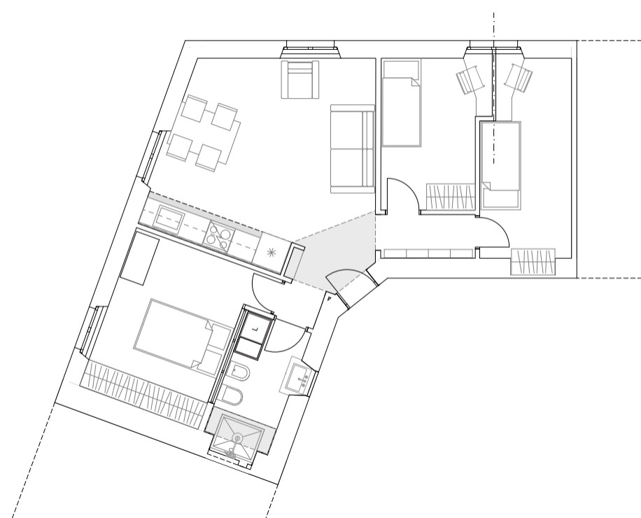
La casa si sviluppa in pianta ad angolo al primo piano, l’ingresso si trova proprio sulla bisettrice e nello stato di fatto l’ingresso, disegnato da un muro a chiusura del soggiorno e della luce, distribuiva da un lato cucina e bagno e dall’altro un’ampia camera.
Le esigenze erano quelle di avere uno spazio comune dove ritrovarsi con amici e familiari e tre piccoli ambienti divisi per la committente e i suoi due ragazzi.
Il progetto di ristrutturazione crea un ingresso aperto sul soggiorno e la cucina a vista che hanno in pianta una forma poligonale. A questo spazio aperto si accede con un’entrata volutamente un po’ sbilenca, accentuata dall’abbassamento che ne segue la sagoma e il disegno del parquet e che distribuisce tutti gli ambienti della casa.
Le tre camere e il bagno essenziali nello spazio e nelle forniture sono state progettate con mobili su misura.
Il pavimento in parquet di rovere crea dei tappeti modificando la trama a seconda degli spazi.
Le porte raso muro e i serramenti in legno con maniglie Lama Olivari fanno da contrappunto discreto ed elegante.
La cucina realizzata in multistrato di rovere ha le ante colore caffelatte e verde chiaro celadon e gli sfondati in verde inglese. Abbiamo cercato di renderla più arredo possibile e meno “cucina componibile” con i pensili aperti, sfalsati, e gli elettrodomestici a libera installazione.
I tantissimi libri della committente trovano posto nelle librerie minimaliste di Kriptonite Krossing che diventano dei veri e propri quadri a texture multicolore.
Per le lampade, in piena sintonia con la committente, ci siamo totalmente affidati ai superclassici moderni: Teti di Magistretti (Artemide) negli spazi di connessione e nel bagno, Parentesi di Castiglioni (Flos) a illuminare lo spazio della camera e del soggiorno, Servomuto Meringa grande per il tavolo, per il piano cucina faretto Museo small (Exenia), in camera di Elena come luce puntuale Applique cylindrinque petite di C. Perriand (Nemo) e dai ragazzi i
Projecteur 165 applique di Le Corbusier (Nemo).








































































